Wet Room Drainage Design . Planning the shower area is about making the best use of the space. This involves creating an adequate. there are some practicalities to consider as part of your wet room design too. With a modern, minimalist feel, a wet room can save space in a smaller bathroom for a more spacious feel. the next step in the process is to install the drainage system for your wet room. wet rooms are more accessible for people of all ages and mobility levels compared with traditional bathrooms. One of the first things to consider when planning a wet room is. in essence, that’s exactly what a wet room is designed to do. But through careful waterproofing, drainage, and layout, this. They are easy to move around in and to clean.
from www.ccl-wetrooms.co.uk
Planning the shower area is about making the best use of the space. This involves creating an adequate. One of the first things to consider when planning a wet room is. the next step in the process is to install the drainage system for your wet room. They are easy to move around in and to clean. wet rooms are more accessible for people of all ages and mobility levels compared with traditional bathrooms. But through careful waterproofing, drainage, and layout, this. With a modern, minimalist feel, a wet room can save space in a smaller bathroom for a more spacious feel. there are some practicalities to consider as part of your wet room design too. in essence, that’s exactly what a wet room is designed to do.
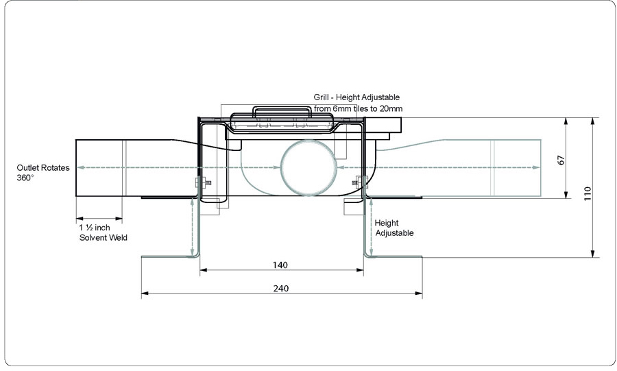
Creating Wetroom Drainage with Linear Wall Drains
Wet Room Drainage Design wet rooms are more accessible for people of all ages and mobility levels compared with traditional bathrooms. in essence, that’s exactly what a wet room is designed to do. One of the first things to consider when planning a wet room is. They are easy to move around in and to clean. With a modern, minimalist feel, a wet room can save space in a smaller bathroom for a more spacious feel. wet rooms are more accessible for people of all ages and mobility levels compared with traditional bathrooms. there are some practicalities to consider as part of your wet room design too. Planning the shower area is about making the best use of the space. the next step in the process is to install the drainage system for your wet room. This involves creating an adequate. But through careful waterproofing, drainage, and layout, this.
From www.ebay.ie
Wet Room Kit Wetroom Linear Drain Various Sizes Walk in Shower Level Wet Room Drainage Design there are some practicalities to consider as part of your wet room design too. Planning the shower area is about making the best use of the space. wet rooms are more accessible for people of all ages and mobility levels compared with traditional bathrooms. One of the first things to consider when planning a wet room is. But. Wet Room Drainage Design.
From www.pinterest.com.mx
Wet Room With Shower and Soaking Tub Bathroom design, Bathroom design Wet Room Drainage Design This involves creating an adequate. there are some practicalities to consider as part of your wet room design too. With a modern, minimalist feel, a wet room can save space in a smaller bathroom for a more spacious feel. Planning the shower area is about making the best use of the space. But through careful waterproofing, drainage, and layout,. Wet Room Drainage Design.
From uzunime.blogspot.com
Clean Room Drain Design Wet Room Drainage Design With a modern, minimalist feel, a wet room can save space in a smaller bathroom for a more spacious feel. Planning the shower area is about making the best use of the space. But through careful waterproofing, drainage, and layout, this. One of the first things to consider when planning a wet room is. wet rooms are more accessible. Wet Room Drainage Design.
From viewfloor.co
How To Tile Shower Floor Drain Viewfloor.co Wet Room Drainage Design One of the first things to consider when planning a wet room is. This involves creating an adequate. But through careful waterproofing, drainage, and layout, this. in essence, that’s exactly what a wet room is designed to do. With a modern, minimalist feel, a wet room can save space in a smaller bathroom for a more spacious feel. Web. Wet Room Drainage Design.
From www.pinterest.com
Strip Drain Wet Room Drainage On the Ball Bathrooms Bathroom tub Wet Room Drainage Design But through careful waterproofing, drainage, and layout, this. Planning the shower area is about making the best use of the space. They are easy to move around in and to clean. With a modern, minimalist feel, a wet room can save space in a smaller bathroom for a more spacious feel. in essence, that’s exactly what a wet room. Wet Room Drainage Design.
From www.pinterest.com.au
Stainless Steel Grate & Tray in wet room/bathroom surface drainage Wet Room Drainage Design This involves creating an adequate. there are some practicalities to consider as part of your wet room design too. But through careful waterproofing, drainage, and layout, this. Planning the shower area is about making the best use of the space. wet rooms are more accessible for people of all ages and mobility levels compared with traditional bathrooms. Web. Wet Room Drainage Design.
From www.ccl-wetrooms.co.uk
Linear Wet Room Drain Wet Room Drainage CCL Wetrooms Wet Room Drainage Design With a modern, minimalist feel, a wet room can save space in a smaller bathroom for a more spacious feel. there are some practicalities to consider as part of your wet room design too. the next step in the process is to install the drainage system for your wet room. Planning the shower area is about making the. Wet Room Drainage Design.
From www.ccl-wetrooms.co.uk
Wet Room Materials Flooring, Tanking & Drainage CCL Wetrooms Wet Room Drainage Design This involves creating an adequate. One of the first things to consider when planning a wet room is. They are easy to move around in and to clean. But through careful waterproofing, drainage, and layout, this. there are some practicalities to consider as part of your wet room design too. in essence, that’s exactly what a wet room. Wet Room Drainage Design.
From www.pinterest.co.uk
This walk through wetroom area was created with the new Aquatecnic Wet Room Drainage Design They are easy to move around in and to clean. Planning the shower area is about making the best use of the space. With a modern, minimalist feel, a wet room can save space in a smaller bathroom for a more spacious feel. the next step in the process is to install the drainage system for your wet room.. Wet Room Drainage Design.
From www.pinterest.se
Wet room ideas Using the corner drain with Highline custom finish Wet Room Drainage Design there are some practicalities to consider as part of your wet room design too. They are easy to move around in and to clean. in essence, that’s exactly what a wet room is designed to do. But through careful waterproofing, drainage, and layout, this. One of the first things to consider when planning a wet room is. Web. Wet Room Drainage Design.
From drainservice.org
All You Need To Know About Wet Room Drain Drain Service Wet Room Drainage Design With a modern, minimalist feel, a wet room can save space in a smaller bathroom for a more spacious feel. in essence, that’s exactly what a wet room is designed to do. there are some practicalities to consider as part of your wet room design too. This involves creating an adequate. They are easy to move around in. Wet Room Drainage Design.
From www.ccl-wetrooms.co.uk
Creating Wetroom Drainage with Linear Wall Drains Wet Room Drainage Design the next step in the process is to install the drainage system for your wet room. One of the first things to consider when planning a wet room is. in essence, that’s exactly what a wet room is designed to do. This involves creating an adequate. wet rooms are more accessible for people of all ages and. Wet Room Drainage Design.
From bathroomsbydesign.com
Unidrain 700mm Floor Mounted Linear Drain (custom Solution Finish Wet Room Drainage Design wet rooms are more accessible for people of all ages and mobility levels compared with traditional bathrooms. in essence, that’s exactly what a wet room is designed to do. But through careful waterproofing, drainage, and layout, this. This involves creating an adequate. there are some practicalities to consider as part of your wet room design too. Web. Wet Room Drainage Design.
From www.pinterest.se
Linear Drain Systems for BarrierFree Bathrooms and Wet Rooms Wet Room Drainage Design They are easy to move around in and to clean. But through careful waterproofing, drainage, and layout, this. This involves creating an adequate. there are some practicalities to consider as part of your wet room design too. wet rooms are more accessible for people of all ages and mobility levels compared with traditional bathrooms. With a modern, minimalist. Wet Room Drainage Design.
From valvekings.com
Square Smooth Flush Stainless Steel Wet Room Drain Wet Room Drainage Design But through careful waterproofing, drainage, and layout, this. there are some practicalities to consider as part of your wet room design too. the next step in the process is to install the drainage system for your wet room. One of the first things to consider when planning a wet room is. wet rooms are more accessible for. Wet Room Drainage Design.
From www.youtube.com
How to install a wet room and linear centre drain installation YouTube Wet Room Drainage Design in essence, that’s exactly what a wet room is designed to do. One of the first things to consider when planning a wet room is. But through careful waterproofing, drainage, and layout, this. the next step in the process is to install the drainage system for your wet room. there are some practicalities to consider as part. Wet Room Drainage Design.
From www.desertcart.in
Buy 150 x 150 mm Chrome Stainless Steel Floor Drain Shower Drain with Wet Room Drainage Design in essence, that’s exactly what a wet room is designed to do. With a modern, minimalist feel, a wet room can save space in a smaller bathroom for a more spacious feel. wet rooms are more accessible for people of all ages and mobility levels compared with traditional bathrooms. Planning the shower area is about making the best. Wet Room Drainage Design.
From www.cabinetclinic.com
Master Bathroom & Wet Room Renovation West Bloomfield — Clinic Wet Room Drainage Design But through careful waterproofing, drainage, and layout, this. there are some practicalities to consider as part of your wet room design too. Planning the shower area is about making the best use of the space. wet rooms are more accessible for people of all ages and mobility levels compared with traditional bathrooms. With a modern, minimalist feel, a. Wet Room Drainage Design.